Diện tích nhỏ, nội thất không quá độc đáo nhưng ngôi nhà ống lại rất hài hòa, thư giãn. Quan trọng nhất, nó phù hợp với chủ nhà - người phụ nữ trung niên yêu nghệ thuật và muốn an nhiên.
- · Sở hữu phòng khách vạn người mê với những mẫu bàn trà mạ vàng mới nhất
- · Phòng khách gia đình được yêu thích nhờ mẫu bàn trà mạ titan này
- · Cứ đẹp nhẹ nhàng nhưng mẫu bàn trà mạ PVD này vẫn đủ khiến bao người phát ghen
- · Khám phá các mẫu bàn trà mặt đá được yêu thích cho không gian phòng khách sang chảnh
Những ngôi nhà ống diện tích nhỏ chẳng còn xa lạ gì ở các thành phố lớn. Điều khác biệt của kiểu nhà này có chăng nằm ở cách xử lý không gian sao cho tinh tế, phù hợp với chủ nhân của ngôi nhà.
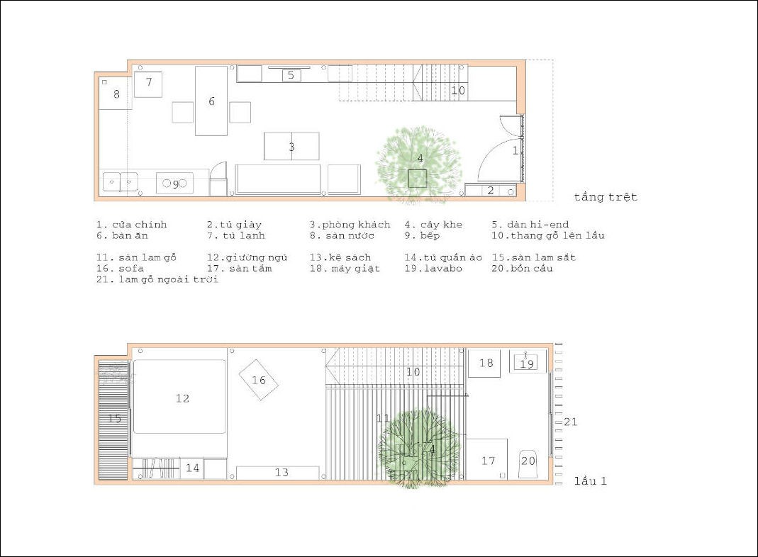
Đối với ngôi nhà xây dựng trên miếng đất có diện tích 3x9m này, chủ nhân của nó vốn là một người phụ nữ trung niên yêu cái đẹp và nghệ thuật. Từ tính cách và mong muốn của gia chủ, KTS đã kiến tạo nên một không gian sống tinh tế đan xen với sự giản dị nhằm tạo dựng một không gian sống an yên cho những năm tháng về sau của cô.
Sự độc đáo, khác biệt của ngôi nhà đến ngay từ mặt tiền.
Với xuất phát điểm như vậy, ngôi nhà ống này có rất nhiều điểm khác biệt. Sự tinh tế thể hiện rõ rệt từ mặt tiền với tường kính và lam gỗ ở tầng 2. Ngay cả cách việc hi sinh diện tích cho khoảng sàn thoáng và giếng trời nhằm kéo ánh sáng vào trong nhà cũng có thể xem là lựa chọn táo bạo cho người phụ nữ tuổi trung niên. Tuy nhiên cũng nhờ thế mà ngôi nhà 2 tầng sâu hun hút này không bị lâm vào tình trạng tối tăm thường thấy.
Một trong những quyết định táo bạo nhất của chủ nhà này chính là việc dành không gian cho cây khế ngay giữa nhà. Tuy tốn diện tích, phải xử lý nền và móng nhà kĩ, nhưng bù lại sự xuất hiện của cây xanh đã mang đến cho ngôi nhà sức sống và sự thư giãn hiếm có. Nhất là đối với người phụ nữ đang bước vào tuổi xế chiều, màu xanh của tán cây trong ngôi nhà thực sự là món quà quý giá.
Hướng đến không gian sống khiêm tốn, giản dị, thêm nữa diện tích nhà lại khá nhỏ nên cách lựa chọn và bài trí nội thất trong nhà đều được lựa chọn sao cho phù hợp nhất với tình hình thực tế. Cụ thể, nội thất trong nhà đều là nội thất gỗ sáng màu và nhỏ gọn, vừa đủ cho gia chủ sử dụng mà thôi. Ngoài ra các hệ kệ đo ni đóng giày cũng giúp cho ngôi nhà thêm gọn gàng, ấn tượng.
Không gian tầng lầu được dành toàn bộ cho mục đích nghỉ ngơi. Sàn lam gỗ thiết kế đặc biệt với những khoảng hở vừa kết nối giữa phòng ngủ và phòng tắm, đồng thời không ảnh hưởng đến quá trình sinh trưởng của cây khế. Thiết kế thông minh này cùng khoảng trần nhà mái kính rộng nay đã mang dòng chảy của nắng gió, thiên nhiên đi khắp nơi trong căn nhà ống, từ đó đáp ứng được sự an nhiên cũng như tạo bầu không khí lãng mạn mà những người yêu nghệ thuật mong muốn.
Có rất nhiều định nghĩa khác nhau về ngôi nhà đẹp, nhưng trước tiên, ngôi nhà đẹp phải là ngôi nhà thoải mái, nơi chủ nhân của nó được đặt ở vị trí trung tâm và các không gian sống phải hài hòa và đem đến sự dễ chịu cho người dùng.












Hãy Comment chuẩn SEO vừa làm tốt cho site của Bạn vừa không bị GOOGLE phạt. Nếu muốn lấy backlink hãy chèn URL không chèn code gắn text link. Biểu tượng hài hướcEmoticon