Căn hộ mới cải tạo ở Tokyo này lại đem đến cái nhìn siêu thú vị nhờ cửa kính xoay được sáng chế bởi kiến trúc sư Tomokatzu Hayakawa với chức năng không chỉ về mặt thẩm mỹ.
- · Sở hữu phòng khách vạn người mê với những mẫu bàn trà mạ vàng mới nhất
- · Phòng khách gia đình được yêu thích nhờ mẫu bàn trà mạ titan này
- · Cứ đẹp nhẹ nhàng nhưng mẫu bàn trà mạ PVD này vẫn đủ khiến bao người phát ghen
- · Khám phá các mẫu bàn trà mặt đá được yêu thích cho không gian phòng khách sang chảnh
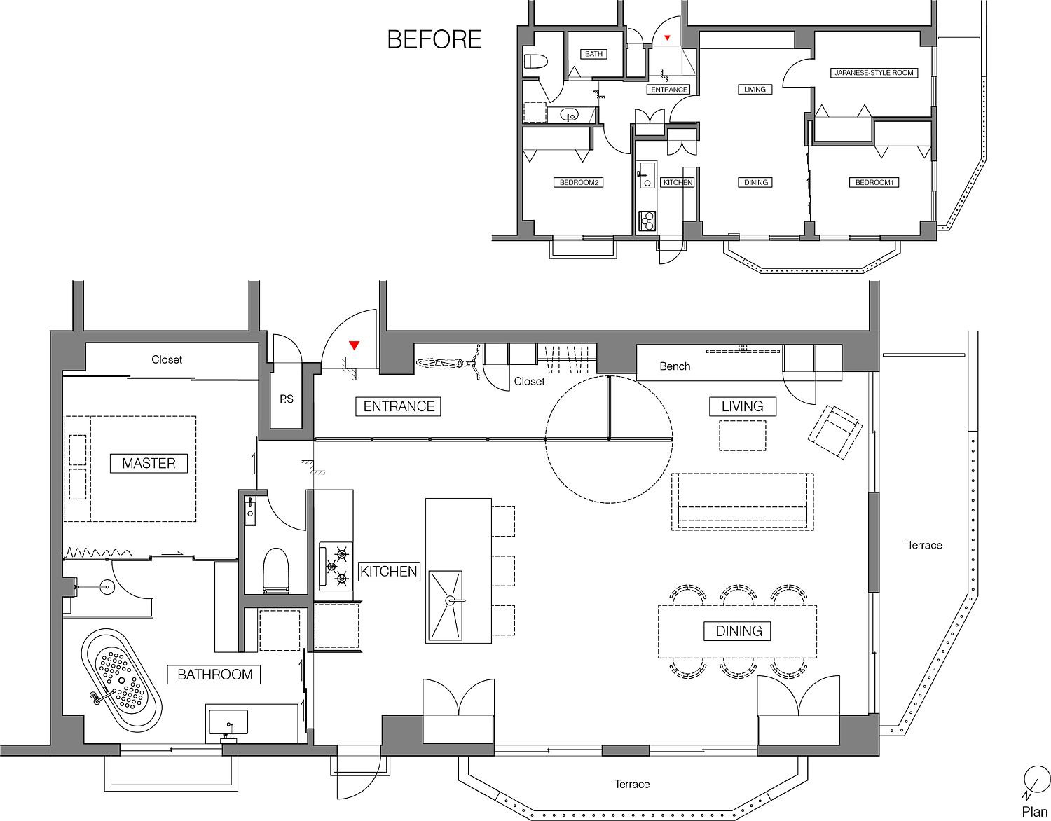
Bạn đã bao giờ nghĩ đến việc thay thế các cánh cửa truyền thống hoặc kiểu Pháp trong nhà bằng một cánh cửa quay? Ý tưởng này có vẻ là một cảm giác kỳ lạ đối với những người không muốn thử nghiệm. Tuy nhiên, căn hộ mới cải tạo ở Tokyo, Nhật này lại đem đến cái nhìn siêu thú vị nhờ cửa kính xoay được sáng chế bởi kiến trúc sư Tomokatzu Hayakawa với chức năng không chỉ về mặt thẩm mỹ.
Căn hộ ban đầu được xây dựng vào những năm 70, nhưng gần đây đã được cải tạo để phù hợp với lối sống hiện đại hơn của chủ nhà. Cửa ra vào bên trong căn hộ phân định không gian bên trong ngôi nhà rộng 75m² bằng kính, cho phép ánh sáng xuyên qua bất cứ lúc nào.
Nhà bếp và phòng ăn mở ra không gian tràn đầy ánh sáng mặt trời trong khi phòng ngủ bên cạnh phòng tắm được ngăn cách với phòng tắm bằng cách sử dụng một vách ngăn bằng kính khéo léo khác. Cánh cửa quay ở các góc khác nhau tạo ra những hình ảnh thú vị, cho phép phòng đa tác vụ mà không bao giờ di chuyển bất kỳ kiểu trang trí nào bên trong nó.
Bê tông tiếp xúc kết hợp với mô hình xương cá backsplash và vách tắm bằng kính tạo nên phòng tắm đẹp mắt.
(Nguồn: Decoist)











Hãy Comment chuẩn SEO vừa làm tốt cho site của Bạn vừa không bị GOOGLE phạt. Nếu muốn lấy backlink hãy chèn URL không chèn code gắn text link. Biểu tượng hài hướcEmoticon